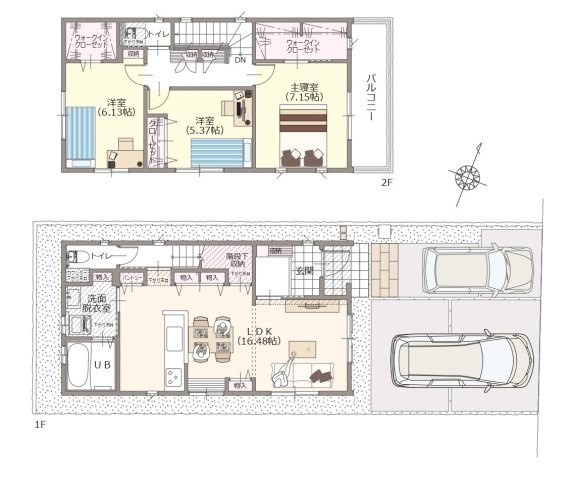
おすすめのエリア 平川地 / 羽鳥 / 新橋町 / 八坂西町 / 山切 / 松原町 / 今泉 / 江尾 / 伝法 / 千代 1件 新着順 安い順 高い順 おすすめ順 住所ごと順 建物面積の広い順 土地面積の広い順 築年数が新しい順 中古一戸建 静岡市清水区八坂西町 清水区八坂西町 戸建 2号棟 3,480万円 - / 93.98㎡ / 3LDK /築1年 /2階建 東海道本線「清水」駅 バス10分 しずてつジャストライン「高橋東」 停歩4分静岡鉄道静岡清水線「新清水」駅 バス13分 しずてつジャストライン「高橋東」 停歩4分静岡鉄道静岡清水線「入江岡」駅 徒歩28分 駐車2台可都市ガス収納豊富ウォークインクロゼットシステムキッチンカウンターキッチン 【暮らしのメリット:家事負担を軽減する「ラク家事」の家】 徒歩4分の場所に「マックスバリュ清水八坂店」があり、 夕食の買い出しや急なお買い物もストレスフリー。 キッチンにはお手入れが簡単なホーローパネルや、 家事時間を短縮する食器洗い乾燥機を標準装備しています。 さらに、外出先からスマホで応対できる「外でもドアホン」や 不在時でも荷物を受け取れる「宅配ボックス」など、 共働き世帯の「あったら嬉しい」が詰まった住まいです。 【物件の価値:洗練されたデザインと確かな品質】 内装コーディネートは「セキスイインテリア東海」が監修。 プロの視点で整えられた空間は、家具を置くだけで絵になります。 建物自体も「長期優良住宅」の認定を受けており、 高い耐震性や省エネ性能、メンテナンスのしやすさが証明されています。 抗ウイルス加工の床材や樹脂サッシ(Low-E複層ガラス)を採用し、 家族の健康を守りながら、夏は涼しく冬は暖かい快適な住空間を実現しました。 【FPの視点:資産性と将来の安心をセットに】 長期優良住宅は、住宅ローン控除の優遇や固定資産税の減額期間延長など、 資金面でのメリットが非常に大きいのが特徴です。 また、将来的な売却や賃貸を検討する際も、 「認定通知書」があることで建物の価値が適正に評価されます。 静鉄不動産による確かな施工とアフターサポート体制も含め、 「長く住み続けるためのコスト」を最小限に抑えられる、 賢い選択肢と言える物件です。 1
【暮らしのメリット:家事負担を軽減する「ラク家事」の家】 徒歩4分の場所に「マックスバリュ清水八坂店」があり、 夕食の買い出しや急なお買い物もストレスフリー。 キッチンにはお手入れが簡単なホーローパネルや、 家事時間を短縮する食器洗い乾燥機を標準装備しています。
さらに、外出先からスマホで応対できる「外でもドアホン」や 不在時でも荷物を受け取れる「宅配ボックス」など、 共働き世帯の「あったら嬉しい」が詰まった住まいです。
【物件の価値:洗練されたデザインと確かな品質】 内装コーディネートは「セキスイインテリア東海」が監修。 プロの視点で整えられた空間は、家具を置くだけで絵になります。 建物自体も「長期優良住宅」の認定を受けており、 高い耐震性や省エネ性能、メンテナンスのしやすさが証明されています。
抗ウイルス加工の床材や樹脂サッシ(Low-E複層ガラス)を採用し、 家族の健康を守りながら、夏は涼しく冬は暖かい快適な住空間を実現しました。
【FPの視点:資産性と将来の安心をセットに】 長期優良住宅は、住宅ローン控除の優遇や固定資産税の減額期間延長など、 資金面でのメリットが非常に大きいのが特徴です。 また、将来的な売却や賃貸を検討する際も、 「認定通知書」があることで建物の価値が適正に評価されます。
静鉄不動産による確かな施工とアフターサポート体制も含め、 「長く住み続けるためのコスト」を最小限に抑えられる、 賢い選択肢と言える物件です。